MARASCA SAMUI
HOTEL RESORT
SERVICES:

Architecture, Interior Design, Landscape Design

OWNER | OPERATOR:

Common Area Samui Co.,Ltd.

LOCATION:

Koh Samui, Thailand

COMPLETION DATE:

2024

GFA:

5,393 M2

JOURNEY | MEMORY:

Live with no excuses and travel with no regrets” ~ Oscar Wilde. …

 

We travel to escape. We travel to discover. Our design seeks to create a memorable resort and holiday experience memories and

 

PLACE:

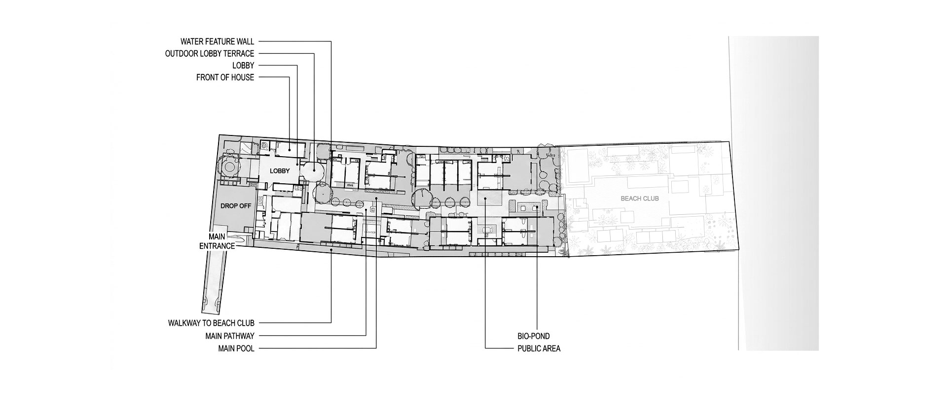
The project is located on the internationally attractive Koh Samui island in the Gulf of Thailand. Koh Samui is an appealing holiday destination to all tourist segments. The site is located on the ever vibrant Chaweng Beach populated with many local and international hotels, restaurant venues, retail and night clubs. The site 35 meter wide x 140 meters deep plus the local regulations inspired and challenged design to create a resort experience, sea view units and a revenue and environmentally sustainable development.

 

FORM | SPACE:

Everything should be made as simple as possible, and no simpler – Albert Einstein

 

The resort master plan is creatively arranged as a series of simple, overlapping, rectangular architectural massing punctuated with a series of internal courtyard spaces.  A sequenced journey of forms and spaces beginning with the hard-court arrival, through tropical garden courts and water courts lead guests to their quarters, invite moments of pause and reflection and eventually to the beach front and sea. The resultant massing and spaces create a variety of resort guest quarters at multiple elevations, vistas and a pleasant softening of the otherwise dense development program.

 

THAI WATER SPACE | CULTURE:

You never step twice into the same river ……. for the waters are always flowing to you. Heraclitus

 

With the limited beachfront width and sea view, a central “Klong” or canal water feature flows through the site from arrival to the beach feeding smaller canals each side creating private water courts. The central and private canals create internal private pools, swim up pools and “view gardens” – like the historical Thai river culture with houses and salas placed on canals where residents can be seen relaxing, dining and fishing …. The winding canal offers changing vistas, the soothing sounds of waterfalls and a cooling effect for the island tropical climate.

 

THAI SPACE | GARDEN SPACE:

Two large existing Tamarind and Banyan trees define garden courts and are an important ecological preservation feature. A ‘Thai’ residential scale for the guest room blocks and the larger structures: The classic Thai house is organized around a space – the Nok Can. A ‘Nok Chan’ and water court create internal vistas and viewing gardens for those spaces without direct view of the sea.

 

ARCHITECURE | MATERIAL:

The architectural materials are simple dialogue of white plaster, Mediterranean or Moroccan style with Thai inspired wooden shutters

 

GUEST SUITES:

Through creative master planning, a variety of guest quarter sizes, styles and views are offered. Unit types include Sea View, Swim up with private pools, Loft style and units with private gardens

 

INTERIOR – COLOR – TEXTURE – PATINA

It takes a certain maturity of mind to accept that nature works diligently in rust …. as in rose petals ……

Esther Warner Dendel, writer and artist (1910-2002)

 

The interior design style is warm, residential and contemporary Thai. Modern adaptations of Thai fabric patterns, coolers and traditional wood architecture contrasts the contemporary architecture and appealing to both international and local guests. The interior material palette is warm, neutral and comforting with a residential scale attention to the details, joinery and furnishings.

CREDITS

TEAM MEMBERS :

Stephen O’Dell, Founder and Director

Montham Nomnaitham
Jinatpak Kietvuttinon
Brian Gillett
Chanatip Pitavivadhananont
Paovalee Pojanapreecha
Pattaraphon Premwhaew
Kunat Khat-Udomkeeree
Sorawid Techarbowornkiat

PHOTOGRAPHER :
Chaovarith Poonpahol
Chaovarith Poonpahol